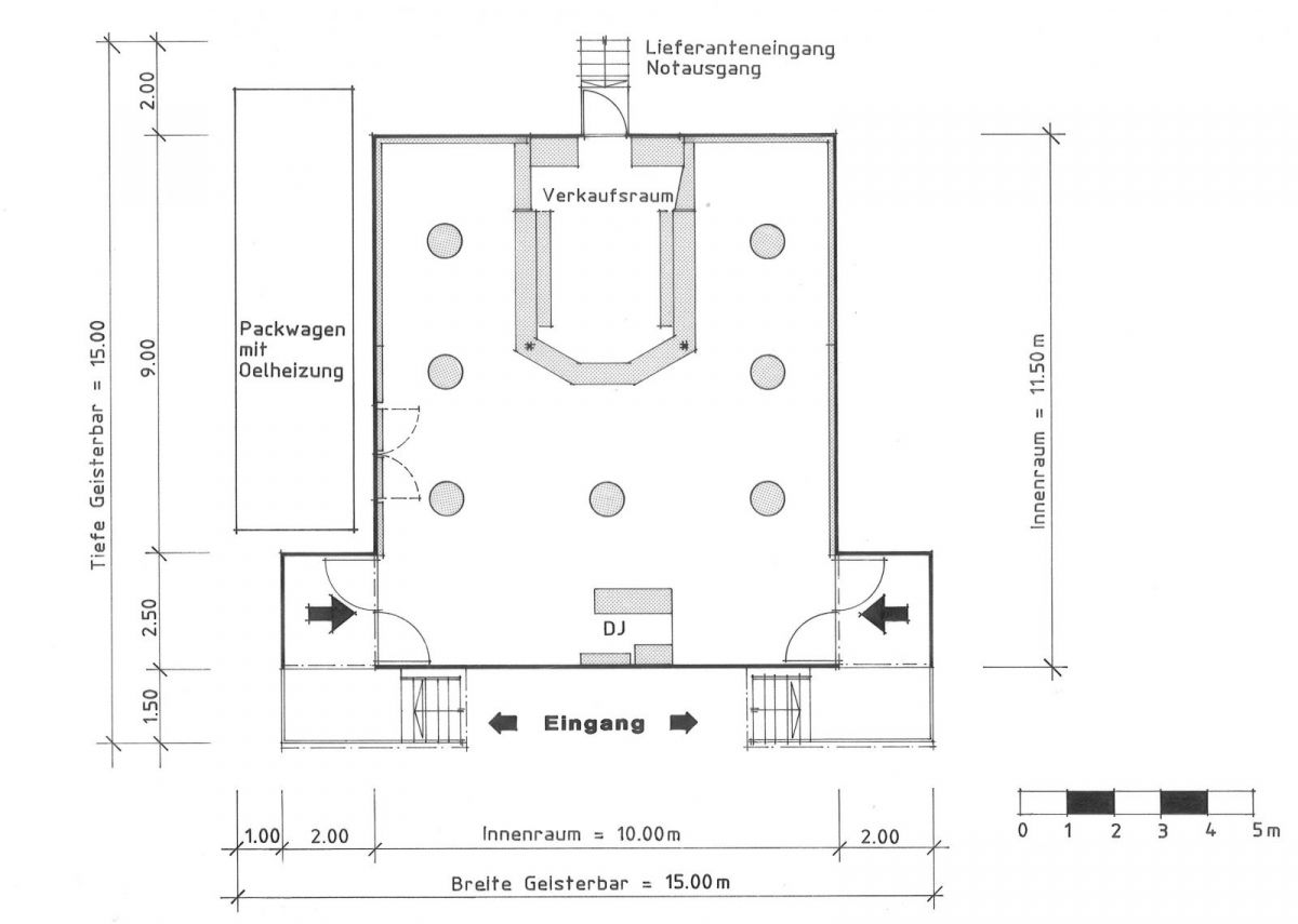
Die Geisterbar verfügt über eine Nutzfläche von 115m2.

Sie bietet Platz für ca. 350 Personen.

Im aufgestelltem Zustand hat die Bar eine Länge von 15m, eine Breite von 15m und eine Höhe von 7m (inkl. Eingangstreppe und Lieferanteneingang Ausgang).

Der Notausgang und die Notbeleuchtung sind fest installiert. Im Innenraum befindet sich eine U-förmige Bar Theke.

Im Arbeitsbereich befinden sich 1 Spülbecken mit Boiler, 8 Kühlschränke mit je 110 Liter Fassungsvermögen und 1 Eismaschine.

Im der integrierten DJ-Ecke befindet sich die Musik- und Lichtanlage, sowie der Sicherungskasten mit sämtlichen Stromanschlüssen.

Die Musikanlage besitzt div. Endstufen, 1 Mischpult, 1 Doppel-CD-Player und 1 Anschluss für den Laptop.

Die Lichtanlage kann einzeln gesteuert werden.

Es hat div. Lichteffekte mit UV-Neon-Beleuchtung, 1 Barschrift und div. Lichtelemente.

Die Geisterbar verfügt über einen Stromanschluss von 380 V / 63 A (Stecker 5 Pol, 3P+N+E) Steckdose auf 63 Ampere absichern, sowie über einen 3/4 Zoll Wasseranschluss (Gartenschlauch).

Zusätzlich zum Inventar gehören noch 20 Barhocker, 7 frei stellbare Stehtische und 1 Ölheizung (gebrauchtes Öl wird noch zusätzlich verrechnet).

Hinten an der Geisterbar befinden sich noch Anschlüsse für Kühlwagen.

Masse

15 x 15m