Die Rondellbar verfügt über eine Nutzfläche von 65m2.

Sie bietet Platz für etwa 120 Personen.

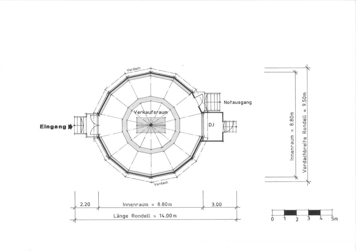
Im aufgestellten Zustand hat die Bar eine Länge von 14m, eine Breite von 9.50m und eine Höhe von 5m.

Der Innenraum hat einen Durchmesser von 8.80m. Hinten neben dem DJ-Haus befindet sich der Notausgang.

Die Notbeleuchtung ist fest installiert.

Im Innenraum befindet sich eine runde Bar Theke, welche mit 1 Spülbecken mit Boiler, mit 4 Kühlschränken à 110 Liter Fassungsvermögen und 1 Eismaschine ausgestattet ist.

Im DJ-Haus befinden sich die Musik- und Lichtanlage, sowie der Sicherungskasten mit sämtlichen Stromanschlüssen.

Die Musikanlage besitzt div. Endstufen, 1 Mischpult, 1 Mikrofon, 1 Doppel-CD-Player und 1 Anschluss für den Laptop.

Vom DJ-Pult aus kann die Lichtanlage einzeln gesteuert werden.

Es hat div. Lichteffekte mit UV-Neon Beleuchtung, 1 Barschrift und div. Lichtelemente.

Die Rondellbar verfügt über einen Stromanschluss von 380 V / 63 A (Stecker 5 pol, 3P+N+E) Steckdose auf 63 Ampere absichern, sowie über einen 3/4 Zoll Wasseranschluss ( Gartenschlauch ).

Zusätzlich zum Inventar gehören noch 14 Barhocker und 2 Elektroheizungen oder eine Ölheizung (gebrauchtes Öl wird zusätzlich verrechnet).

Hinten an der Rondellbar (unter dem DJ-Haus) befinden sich noch Anschlüsse für Kühlwagen.

Masse

Breite 9.50m
Länge: 14m
inkl. Treppenaufgang